Aguarde, processando!

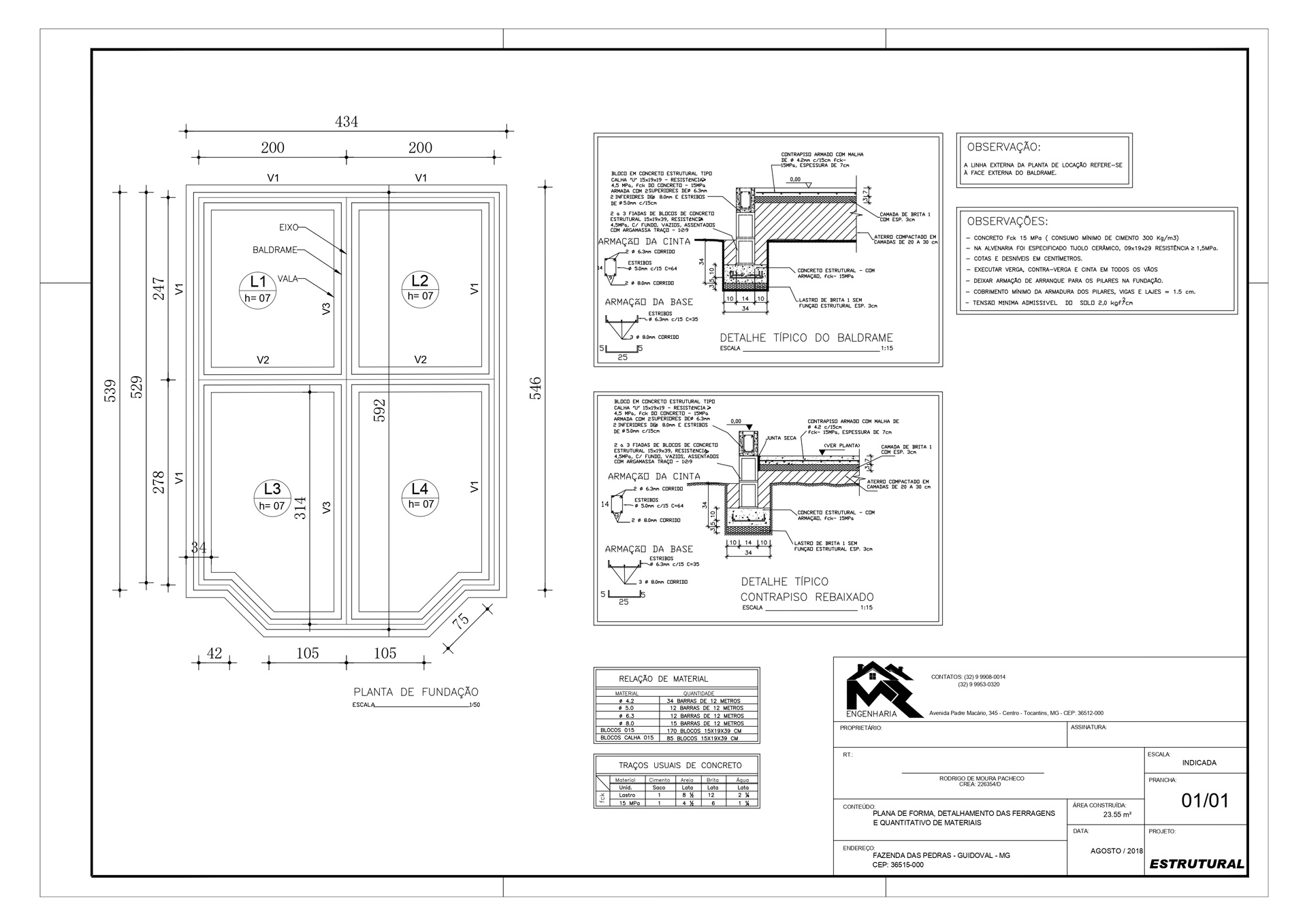
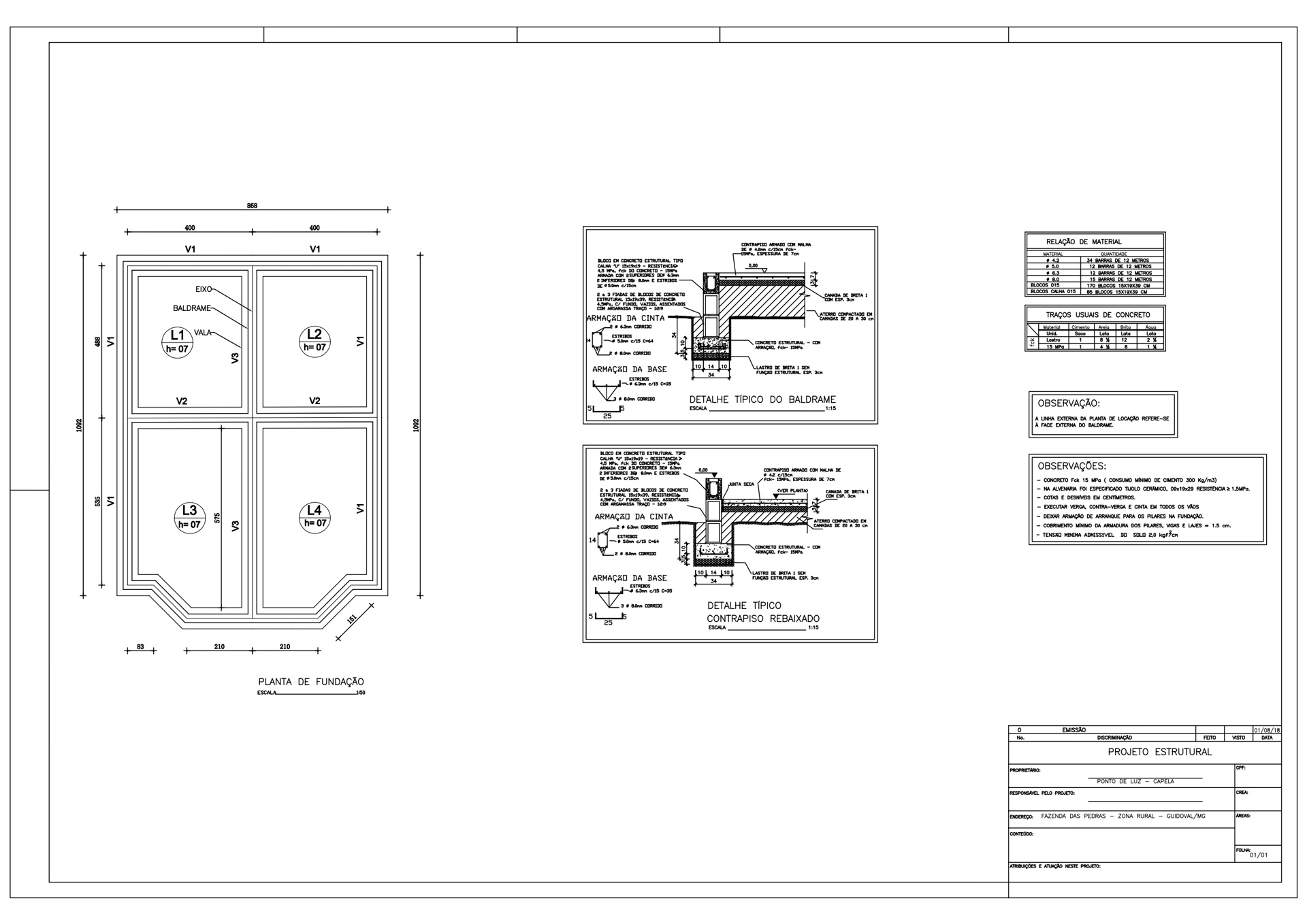
PROJETO ESTRUTURAL

Abaixo estão as fotos do Projeto Estrutural.

Você também pode baixar todas as fotos do projeto, incluindo um vídeo em 3D de todo o projeto, para isso você só precisa clicar aqui, assim será direcionado a página onde poderá fazer os downloads.

O Projeto Estrutural foi desenvolvido e doado pela "M R Engenharia Civil", do Rodrigo de Moura Pacheco - Engenheiro Civil, que elaborou e está nos dando todo o suporte ao desenvolvimento.

RESUMO DE MATERIAIS

DADOS GERAIS:

14 x 19 x 29 (Larg. x Alt. x Comp.)

Área Total: 391.00 m²
Esp. Junta Argamassa: 1.50 cm
Taxa de Perda: 10 %

MATERIAIS:

Blocos: 4650 unidades [14 x 19 x 29 (Larg. x
Alt. x Comp.)]
Cimento: 18.5 Sacos 50.0 kg
Areia: 6.163 m³ (342.4 Latas 18 L)
Água: 2496.20 litros (138.7 Latas 18 L)
Blocos: 2300 unidades de blocos calha [14 x
19 x 29 (Larg. x Alt. x Comp.)]
 

CONCRETO DAS VIGAS

DADOS GERAIS:

Concreto: 30.000 m³ (1 Cimento: 2.5
Areia : 3.5 Brita)
Taxa de Perda: 10 %

MATERIAIS:

Cimento: 4.714 m³ (5657.14 kg ou 113.1
Sacos 50.0 kg)
Areia Úmida: 11.786 m³ (20035.71 kg ou
654.8 Latas 18 L)
Brita: 16.500 m³ (23100.00 kg ou 916.7
Latas 18 L)
Água: 3665.83 litros (203.7 Latas 18 L)

CONCRETO DAS LAJES:

DADOS GERAIS:
Espessura: 7.00 cm
Concreto: 84.700 m³ (1 Cimento : 2.5 Areia :
3.5 Brita)
Área: 1100.00 m²
Taxa de Perda: 10 %

MATERIAIS:

Cimento: 12.100 m³ (14520.00 kg ou 290.4
Sacos 50.0 kg)
Areia Úmida: 30.250 m³ (51425.00 kg ou
1680.6 Latas 18 L)
Brita: 42.350 m³ (59290.00 kg ou 2352.8
Latas 18 L)
Água: 9408.96 litros (522.7 Latas 18 L)